Cik Ditiro Apartment, Menteng, Jakarta
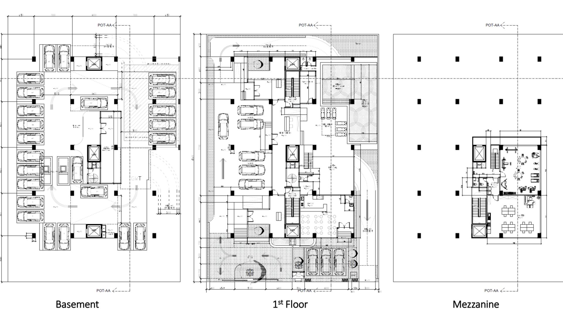
Cik Ditiro Apartment is a 7-story residential building with a basement, strategically located in the prestigious Menteng area, Jakarta—a neighborhood renowned for its rich heritage architecture and historical significance. Spanning a land area of ±1,500m² with a total floor area of ±5,500m², this exclusive apartment complex is thoughtfully designed to blend modern urban living with the timeless elegance of Menteng’s architectural heritage.
The design concept embraces a fusion of contemporary and classic elements, reflecting the area’s colonial-era influences while integrating modern conveniences and sustainable features. The facade and material selection pay homage to the surrounding heritage buildings, incorporating subtle neoclassical details, large windows, and natural materials that create a sense of warmth and sophistication. Interior spaces emphasize high ceilings, elegant finishes, and carefully curated layouts to provide an atmosphere of luxury and comfort.

